There are likely countless details to building smaller and smarter, but only a few game-changing principles that reduce size across the board. These key principles unlock size reductions that wouldn't happen otherwise. This is more important than ever today because nobody is saying "money is no object" anymore. Every client has real choices to make, and at the core, they all come down to this: Do you want it bigger, or better? Make it bigger and the quality goes down. Make it better and it must be smaller.

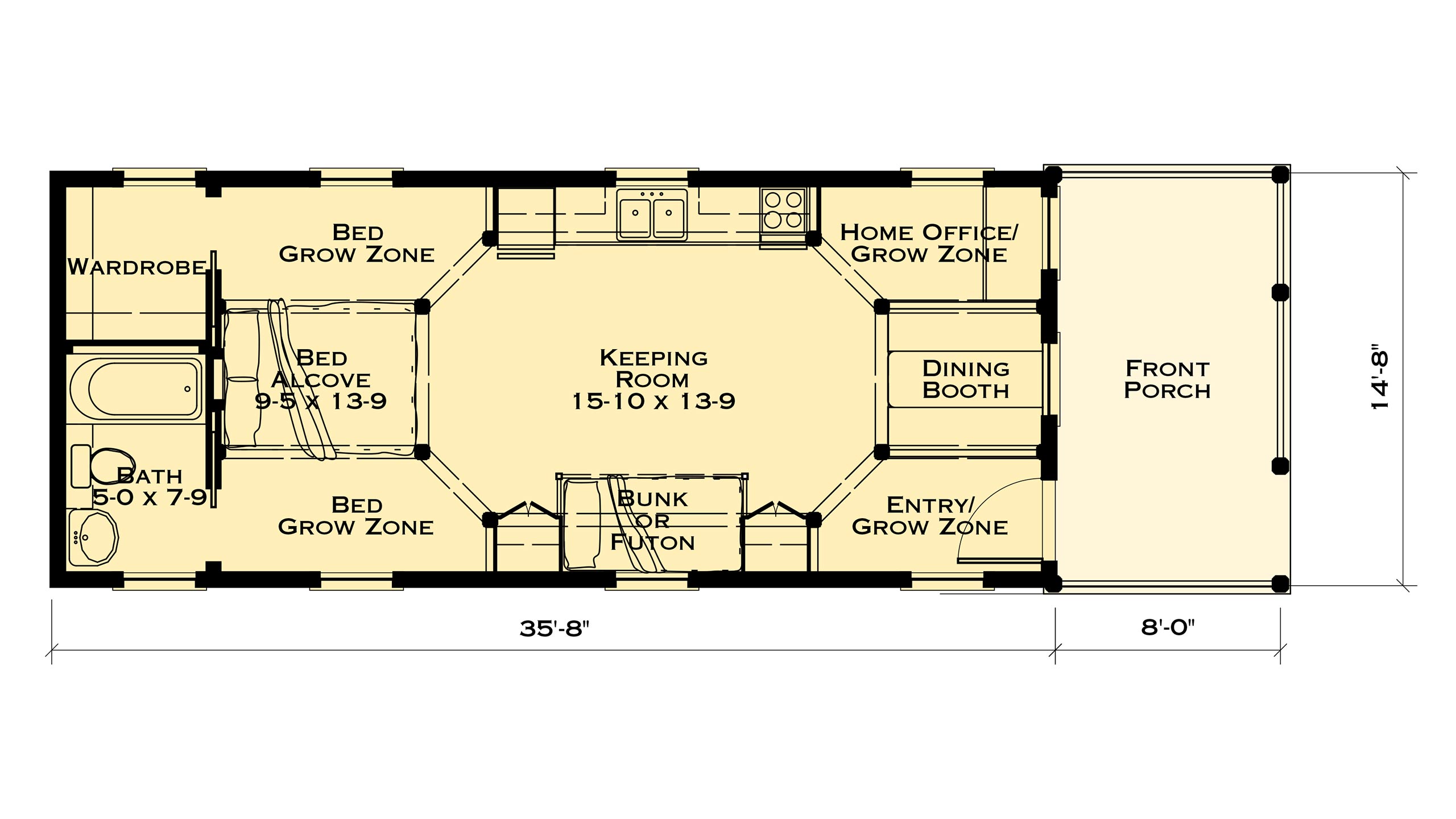
Katrina Cottage VIII floor plan
Expandability
The biggest impediment to building smaller and smarter is the lack of a clear expansion path. People fell in love with the Katrina Cottages, but the first generation of designs didn't expand very well because exterior walls were so quickly eaten up with closets, baths, and cabinets. The very first design move in a smaller and smarter design should be to locate the Grow Zones so that homeowners see clearly how they could expand if their needs change.
Double Duty
McMansions might have three or four places to eat. NASA calls that redundancy. If you're on the way to the moon and one system fails, your life depends on having a backup. But houses don't go to the moon. Early American homes did the opposite, with single elements doing many jobs. The "keeping room," for example, was where all the housekeeping was done. Anything that didn't happen in the bedroom or the outhouse happened in the keeping room.

Light on More Sides
Smaller rooms can be more delightful than larger rooms if there are windows on more than one side. Bedrooms can be extraordinarily small, for example, with windows on three sides.
Outdoor Rooms
Excellent outdoor rooms can be built and furnished for a fraction of the cost of interior space, and when you entice people outdoors, they get acclimated to the local environment and don't need as much conditioning when they return indoors, slashing their utility bill. They also need less indoor living space if they have outdoor rooms they can use for several months of the year.
Light Wings
Don't just build a smaller footprint, but build an especially thin footprint so the house is only one room deep wherever possible except in the northernmost states, where the plan should be more compact to conserve heat. The thinner plan will be longer, and can better help to enclose the outdoor rooms.

Walk to the Grocery
If you live close to the grocery, you're probably living close to other necessities of life as well. And if the street in between is walkable enough, then you'll likely enjoy the fresher produce so much that you soon find yourself buying groceries by the meal, rather than by the week. That will lead to walking to buy other necessities in smaller quantities as well, so you'll need less storage space throughout your house.
Bed and Breakfast Benefits
Do everything you can to see that a bed and breakfast opens near you. If so, you'll save tens of thousands by not building the guest suite which will save enough on your mortgage to pay your guests' bill at the inn if you want to.
Silver Bullets

Booths
If we hope to build radically smaller and smarter, where a client would choose to live in half the space because they like it better than the bigger, less intelligent house, then we need a few silver bullets that save far more than half the footage. For example, consider which seats fill up first at restaurants. It's the booths, right? A comfortable booth for six people can easily be designed in 36 sq.ft. or less. Seat those same six people in a dining room with adequate space to serve around them, and it takes about 180 sq.ft. Why not give people what they'd really prefer in a fifth of the space? And in the spirit of doing double duty, the booth can double both as a light-duty home office and as a homework station with just the addition of appropriate receptacles.

Children's Realm
The bed alcove is a special type of silver bullet because it has an extra benefit: it allows the sleeping enclosure to be curtained off at night. This means you can cut the thermostat down ridiculously low on winter nights, and your body heat will likely keep your alcove warm. The master bed alcove might open into a larger bedroom, but it's possible to put all the children's bed alcoves around a single "children's realm," which saves a lot of footage versus individual bedrooms and baths. Because privacy is achieved with each alcove's curtains (wardrobes are built into each alcove) the children's realm doesn't need a door, and the computer can be located at a table where parents can see where their kids are surfing.
Compartmentalized Baths
Build baths with compartments for the toilet and shower, so that more than one person can use them at a time. A single properly-designed compartmentalized bath can serve the entire children's realm, whereas you'd likely need another bath if one kid can lock the door and keep the others out. Compartmentalization works great for the parents' bath as well, because there are some things that shouldn't be shared.
Furniture vs. Closets
Ever notice how early American homes often had much cleaner floor plans than today's homes? If you study them carefully, you'll notice it's because they weren't burdened with today's assortment of clothing and utility closets. Instead, clothes were stored in furniture such as armoires, dressers, and chests of drawers. This allowed the rooms to be much cleaner, and the inside and outside walls to each be better composed. This also allowed rooms to be repurposed over the years as household needs changed. What once was a bedroom could become a study, for example, simply by changing out the furniture.

Armoire Advantages
There are other advantages to furnishing instead of closeting: By the time you frame the wall for a wall closet, install the sheetrock, the door frame, the door, the hardware, and the door casing and baseboard, and then paint it all (except the hardware, of course) you've spent enough money to build an armoire that stores every bit as much as the plain sheetrock closet, and looks much better. And the walls of the armoire can be as thin as ¾ inch instead of the 4-¾ inch sheetrock walls (assuming ⅞ inch sheetrock.) So you're saving 4 inches of floor space at every wall. Add that up across a house and it's a notable difference. But those aren't all the advantages. There is no need for the armoires to be taller than eight feet, while the ceiling might be nine feet, ten feet, or higher. So your perception is that the room is larger when it's furnished with armoires rather than gummed up with closets that run all the way to the ceiling. Need the equivalent of a walk-in closet? No problem… just design two facing armoires.
Don't Waste an Inch
The attitude of recovering every cubic inch possible leads to a plethora of patterns, including Booth Seat Shelves, Kitchen Corners, the One-Item Deep Pantry, Box Spring Drawers, Under-Bed Baskets, the Book Bench, the Reach-In Closet (where you still have closets), and several things you can do under the stairs.

Open Walls
The most radical result of the "don't waste an inch" attitude is to open the interior walls where possible. Use wood boards instead of sheetrock on one side, then leave the finish off the other side and build shelves between the studs so that every interior wall becomes a shelving unit. Boarded walls are much more interesting than sheetrock, and allow the attachment of shelves, pegs, hooks and even fixtures and appliances at any point, stud or not. Eric Moser began this train of thought in 2001 with the Idea House at Habersham. I did my first open-wall design with Katrina Cottage VIII. We now do this on all our new designs; it's incredibly charming and radically space-saving because you can store so much stuff in the walls.
I'll blog soon about several benefits of building smaller and smarter. The Teddy Bear Principle shows how smaller buildings can be morelovable. Because they're smaller, it's easier to make them more durable because you don't need as many materials and can therefore afford to use better stuff. Buildings that are both smaller and smarter are also more adaptable in several ways. And there are many virtuous cycles that kick in with smaller buildings that make them more frugal as well.